物件一覧
定期借地とは
工法・構造
お客様の声
Q&A
物件を探す
来場予約
・
お問合せ
会員登録
物件一覧
定期借地とは
工法・構造
お客様の声
Q&A
NEWS
会員登録
HOUSING INFO
- 物件情報 -
平屋回帰 岐阜月丘町Ⅱ
#平屋 #太陽光発電 #駅近 #ハーフオーダー
勾配天井付きの開放感あふれるLDK
大容量の納戸、3つのWIC、SCLなど安心の収納量
洗面室とキッチンが隣接していて家事ラク導線
中庭広々ウッドデッキ
失敗しない注文住宅【ハーフオーダー】
▶▷
詳細はこちら
◁◀
【現地見学会開催中】
事前予約制・平日可
現地ご見学後、近隣のモデルハウスへご案内します
お気軽にご予約下さい!
LDK標準スタイル
※イメージパース
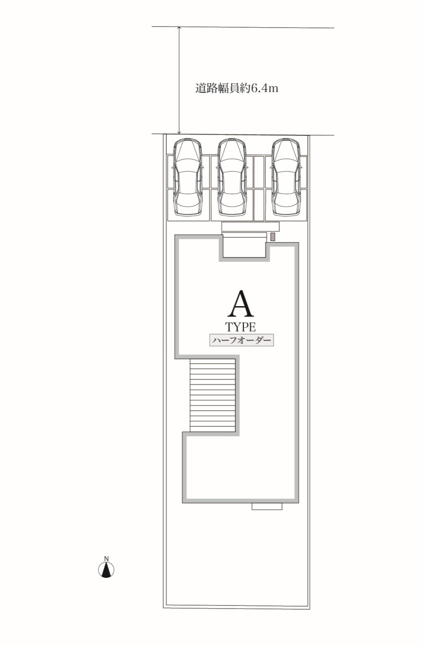
所在地
岐阜市月丘町一丁目28番
最寄駅
名鉄各務原線「田神」駅 徒歩約9分(約650m)
総戸数
1戸
詳細情報
※掲載の区画図は図面を基に描き起こした区画図面につき、実際のものとは異なります。
A棟
販売価格
2,980
万円
敷地面積
253.48㎡(76.67坪)
延床面積
92.96㎡(28.12坪)
土地代
2.4 万円
敷金
100 万円
権利金
50 万円
駐車台数
3 台
この物件のお支払い例
価格
3,130
万円
月々
109,395
円/月
頭金 0 円
/
ボーナス払い 0 円
借入条件:固定金利 2.35 %、借入総額 3,130 万円、
借入期間 35 年
※「価格」は建物金額+権利金・敷金を含んでいます。
※このシミュレーションは借入れを保証するものではありません。
※シミュレーションの結果の金額は概算です。詳細なお見積もりはスタッフにご相談いただくか、フォームよりお問い合わせください。
※シミュレーション上の金利は、住宅金融支援機構の「フラット35S」と「子育てプラス」の-0.5%の金利優遇を受けた当初5年間の金利です。
土地付き住宅との比較
近隣の土地価格 1,748 万円
※物件と同等の敷地面積
東新住建のテイシャク
建物
2,980 万円
敷金
100 万円
権利金
50 万円
合計
3,130
万円
毎月返済
10.9 万円
土地代 / 月
2.4 万円
太陽光発電の
売電収入
-2.2 万円
計
11.1 万円
土地付き住宅
建物
2,980 万円
土地
1,748 万円
合計
4,728
万円
毎月返済
15.1 万円
土地代 / 月
0 万円
計
15.1 万円
差額 4.0 万円 × 420 ヶ月( 35 年)
東新住建のテイシャクは土地付き住宅より
1,680
万円節約
来場予約・お問い合わせ
内観施工イメージ
LDK標準スタイル
※イメージパース
LDK標準スタイル
※イメージパース
LDK標準スタイル
※イメージパース
LDK標準スタイル
※イメージパース
外観完成イメージパース
外観完成イメージパース
※外構・植栽・車・等はイメージであり販売価格に含まれません
外観完成イメージパース
※外構・植栽・車・等はイメージであり販売価格に含まれません
ウッドデッキイメージパース
※外構・植栽・車・等はイメージであり販売価格に含まれません
庭イメージパース
※外構・植栽・車・等はイメージであり販売価格に含まれません
同仕様設備・収納写真
同仕様キッチン写真
同仕様浴室写真
モデルハウス洗面室写真
モデルハウストイレ写真
同仕様WIC写真
モデルハウス納戸写真
ハーフオーダー平屋対象
自分好みに外観と内装を設計できる【ハーフオーダー平屋】
付帯設備
お手入れのしやすさと収納力を備えたLIXIL製キッチン
蛇口が上についていることで、蛇口周りに水垢やヌメリがつきにくくお手入れしやすい洗面台
3面鏡裏には、洗面用品の収納に便利な段差を変えられる棚付き
部屋干しに便利な衣類乾燥機能や、冬の入浴時にあると嬉しい暖房機能付き
太陽光発電パネル約8kWが標準搭載
毎月約16000円の副収入もあり、災害時にも安心
在来工法に比べ、耐震性・耐火性に優れ高耐久な2×4工法
さらに当社では、従来より強度を40%高めた「4.3倍2×4工法」を採用
周辺環境
岐阜市月丘町一丁目28番
●名鉄各務原線「田神」駅 約606m(徒歩約 8分)
●名鉄名古屋本線「名鉄岐阜」駅 約1,566m(自転車約 6分)
●JR東海道本線「岐阜」駅 約2,100m(自転車約 8分)
●梅林こども園 約 315m(徒歩約 4分)
●かぐや第一こども園 約 516m(徒歩約 7分)
●梅林小学校 約260m(徒歩約 4分)
●梅林中学校 約872m(徒歩約11分)
●マックスバリュ岐阜元町店 約993m(徒歩約13分)
●アスティ岐阜 約1,911m(自転車約 8分)
●スギ薬局鶴田店 約556m(徒歩約 7分)
●ホームセンターコーナン岐阜店 約737m(徒歩約10分)
●かのうクリニック 約521m(徒歩約 7分)
●ファミリーマート岐阜鶴田町店 約501m(徒歩約 7分)
●金園公園 約308m(徒歩約 4分)
物件概要
所在地
岐阜市月丘町一丁目28番
最寄駅
名鉄各務原線「田神」駅 徒歩約8分(約606m)
販売戸数/総戸数
1戸/1戸
A棟
価格
2,980万円(税込)
土地代
24,000円(月額)
敷金
100万円
権利金
50万円
敷地面積
253.48㎡(76.67坪)
延床面積
92.96㎡(28.12坪)
間取り
4LDK
駐車台数
3台
構造
木造平屋建[2×4工法]
接道状況
北側道路幅員約6.4m
用途地域
第二種住居地域
建ぺい率/容積率
60%/200%
土地の権利形態
【一般定期借地権】●期間/新規50年●期間満了時には更地にして返還●更新/なし ●敷金/100万円※敷金は期間満了時に全額無利息にて返還します。 ●権利金/50万円 ●地代(月額賃料)/24,000円※改定あり、賃料改定は3年毎に改定、改定後賃料は公式による ●登記/土地に賃貸権設定登記可能●借地権の譲渡・転貸可能(通知要・地主承諾要・承諾料不要)【建築条件付土地】本土地は、一般定期借地権設定契約の締結と同時に建物の建築請負契約が締結される事を条件に賃貸します。建築請負契約が締結されない、若しくは、破棄された場合は一般定期借地権契約は締結時にさかのぼって効力を失います。
地目
宅地
建築確認番号
確認サービス第 KS126-0410-50742号
取引態様
土地/借地権代理 建物/仲介(専任)他
設備
公営水道 下水道 中部電力 都市ガス
完成予定日
契約後4ヶ月
引渡可能年月
契約後4ヶ月
情報更新日
2026年4月17日
来場予約・お問い合わせ
物件一覧に戻る
定期借地とは?
工法・構造